

Galloway
5 bedroom detached villa with garage
Sales Suite Open
More about this Galloway (Plot 23)
Move-in ready EARLY 2026
The Galloway is an impressive five-bedroom detached villa, expertly designed for modern family living with space, style, and practicality at its core. This spacious family home offers flexible accommodation ideal for growing families or those seeking versatile living space.
At the heart of the property is a generous open-plan kitchen and dining area, perfect for everyday family life and entertaining. Elegant French doors open directly onto the rear garden, creating a seamless indoor–outdoor flow and filling the space with natural light. A spacious front-facing living room features half-glazed doors leading into the dining area, providing an ideal setting for relaxing or hosting guests. A flexible family room or home office adds further versatility, while a conveniently located ground-floor WC enhances everyday practicality.
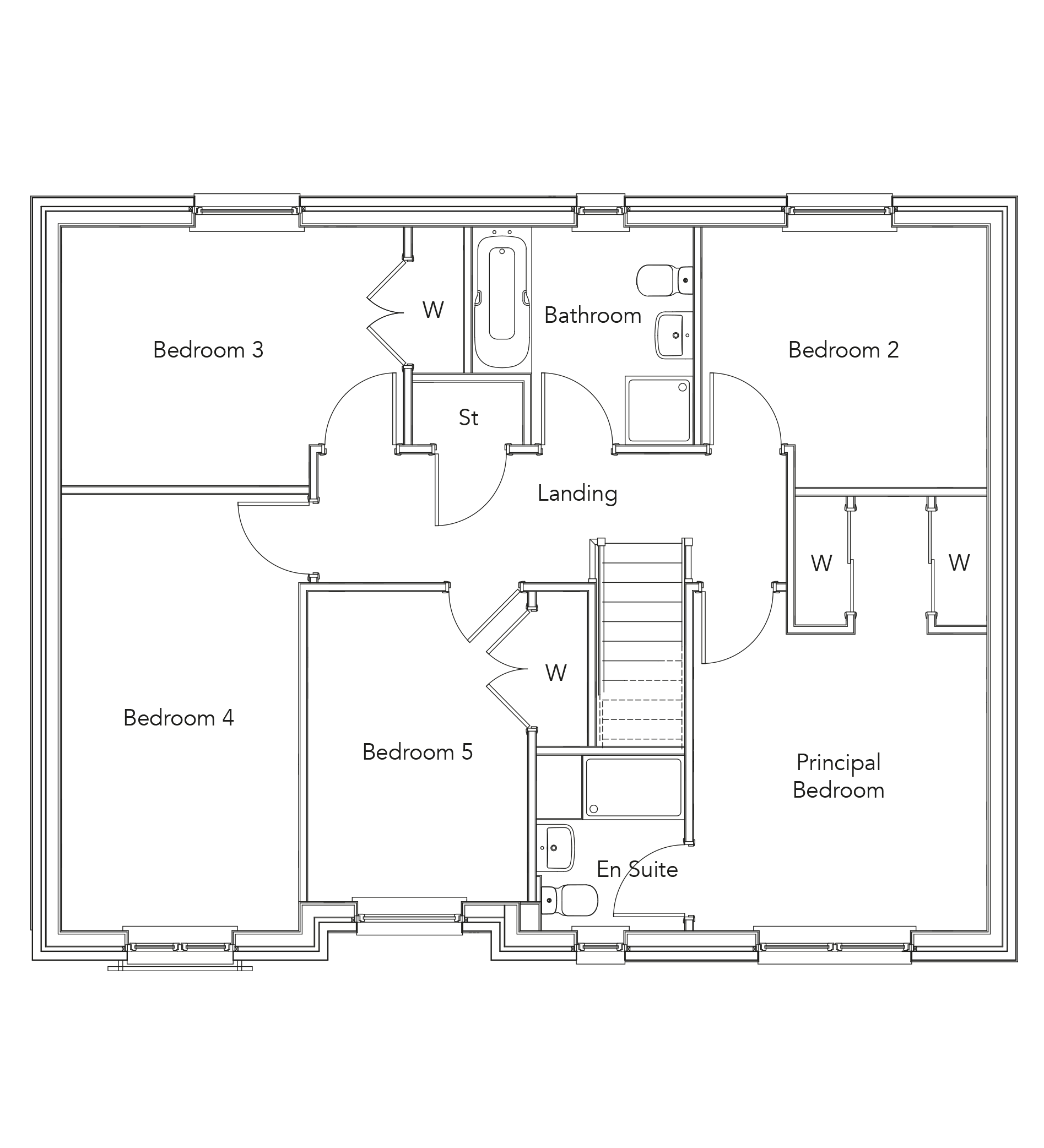
Upstairs, five well-proportioned bedrooms provide generous accommodation. The luxurious principal bedroom benefits from a private en suite shower room and dressing area with fitted wardrobes. Bedrooms three and five include built-in storage, while a contemporary family bathroom with a separate shower cubicle serves the remaining rooms.
An integral garage with direct access to the utility room completes this highly functional home.

| Metric | Imperial | |
|---|---|---|
| Lounge | 3.44 x 5.05 | 11’3” x 16’6” |
| Kitchen/Breakfast | 5.53 x 3.02 | 18’1” x 9’9” |
| Dining Room | 3.44 x 3.03 | 11’3” x 9’9” |
| Family Room | 2.47 x 3.40 | 8’1” x 11’2” |
| Utility | 1.70 x 2.41 | 5’6” x 7’9” |
| WC | 1.79 x 1.20 | 5’9” x 3’9” |
| Garage | 2.65 x 5.58 | 8’8” x 18’4” |

| Metric | Imperial | |
|---|---|---|
| Principal Bedroom | 3.45 x 3.45 | 11’3” x 11’3” |
| En Suite | 1.75 x 2.04 | 5’7” x 6’7” |
| Bedroom 2 | 3.35 x 3.03 | 10’10” x 9’9” |
| Bedroom 3 | 4.02 x 3.01 | 13’2” x 9’9” |
| Bedroom 4 | 2.79 x 5.08 | 9’2” x 16’7” |
| Bedroom 5 | 2.59 x 3.63 | 8’5” x 11’9” |
| Bathroom | 2.60 x 2.54 | 8’5” x 8’3” |
Dimensions shown for all our homes are approximate; each home is built individually and therefore precise measurements may vary from those shown, although every effort is taken to ensure dimensions are as accurate as possible. We give maximum dimensions that include fitted wardrobes, sloping ceilings, bay windows, and any other features. Measurements should not be relied upon for ordering or fitting carpets, floor coverings and all other fitted goods. Consequently, these particulars do not form part of any contract.
Options will be subject to build stage. Finished, ready to move into plots will have pre-selected kitchens and colours. For individual preferences please discuss any request as soon as possible with the Development Sales Manager/Advisor to avoid disappointment.
Allanwater Homes reserve the right, without notice, to change specification and equipment. *Subject to build stage. Full specifications can be found in the house-type brochure.

Finance Matters
If you don’t have a personal Independent Financial Adviser or haven’t received mortgage information, help can be sought from the IFA below.
Buchanan Tower Buchanan Business Park
Cumbernauld Road
Glasgow G33 6HZ
T: 0141 779 8010
E: stan.collins@mab.org.uk