3 & 4 bedroom bungalows
3, 4 & 5 bedroom villas
Sales Suite Open
Thursday-Monday, 11am-5.30pm
from
£239,995
Off Lanark Road, Braidwood,
Carluke ML8 4PW
what3words: ///beyond.alcove.widely





Discover…
…the art of modern living at Allanwater Homes. Our new Arisaig Showhome unveils thoughtfully designed interiors where style meets everyday comfort – your journey to an exceptional home starts here.
Off Lanark Road, Braidwood,
Carluke ML8 4PW
OPEN
Thursday-Monday,
11am-5.30pm
Carluke
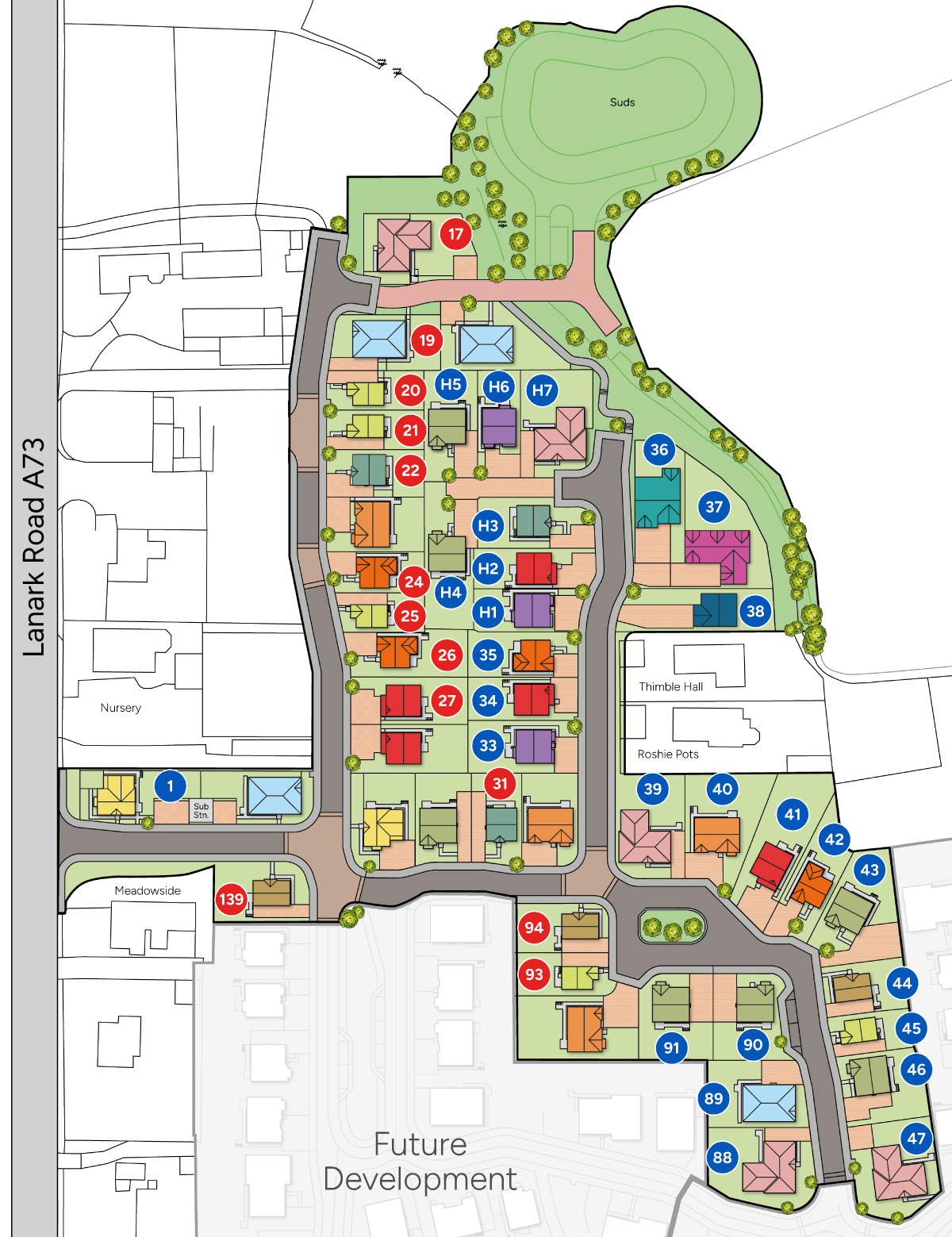
Development Siteplan
The Development Plan is for orientation purposes only and does not show details of land gradients, boundary treatments or lighting. The plan has been prepared with care, and it is our intention to build in accordance with this plan, but there may be occasions when boundaries, footpaths and landscaping may change during the building process.
Integrated white goods – included in all fitted designer kitchens, seamlessly blending with cabinetry to provide functionality and elegant aesthetics.
Rainfall showers – mimics a gentle downpour, offering a luxurious and soothing experience, perfect for modern, spa-like bathroom environments.
Vanity units – are included in both bathrooms and en suites, offering storage and enhancing the overall space aesthetics.
7kw EV charger and external cold water tap – perfect for gardening, cleaning, and power tools, adding practicality to homes.
If you’re searching for new homes in Carluke, Braidwood offers the perfect blend of modern living and village charm.
This sought-after development features a collection of three and four bedroom bungalows, alongside spacious three, four and five bedroom detached homes. Each property has been thoughtfully designed to suit contemporary lifestyles, combining comfort, practicality, and elegant design.
Experience It for Yourself
While photos and descriptions can give you a sense of the showhome, nothing compares to experiencing it in person the quality, space, and style that define an Allanwater home.
Walking through the showhome allows you to fully appreciate the space, the flow, and the quality of finish. It’s your chance to see how the layout works, to imagine your own furniture in place, and to picture your life unfolding within these walls.
From light-filled interiors to well-planned living spaces, it offers a true sense of how these homes feel to live in. It’s the ideal way to picture your future at Braidwood.
Every home includes high-quality features as standard, from integrated kitchen appliances and luxurious rainfall showers to sleek vanity units and a 7kW EV charger. These details are designed to make everyday living easier and more enjoyable.
Located just minutes from Carluke town centre, Braidwood puts you close to shops, cafés, restaurants, and schools. Excellent transport links also provide easy access to Glasgow and Edinburgh, while the surrounding countryside offers a peaceful setting to come home to.
With selected homes ready for Summer 2026 and demand continuing to grow, now is the time to secure your place in this thriving community.
Visit the Arisaig showhome today and discover what makes these new build homes in Carluke so special. Speak to our Development Sales Manager and take the first step towards your new home at Braidwood.
You can be confident when you choose one of our homes as we subscribe and comply to the Consumer Code for Home Builders, safeguarding all our homebuyers.
Carluke
Location
Carluke, in the heart of Lanarkshire, Scotland, offers a blend of rural charm and urban convenience.
Though modest, this vibrant town has a rich historical tapestry and expanding modern amenities.
Residents enjoy the tranquillity of the Scottish countryside with excellent transportation links, making it an ideal location for commuters working in Glasgow or Edinburgh.
Local Amenities
Education
& Nursery
Braidwood Primary School – 1.0 mile
St Athanasius Primary School & Nursery – 1.0 mile
Happy Feet Nursery – 1.0 mile
Crawforddyke Primary School – 1.1 miles
Kirkstyle Early Learning Centre – 1.1 miles
High Mill Primary School – 1.2 miles
Victoria Park School – 1.4 miles
Carluke Primary School & Nursery – 1.5 miles
Carluke High School – 1.6 miles
Supermarkets
& Takeaways
Tesco Superstore & Petrol Station 0.6 miles
Esso & Spar shop – 0.6 miles
Aldi – 0.8 miles
Morrisons Daily – 1.1 miles
Domino’s Pizza – 0.9 miles
Sen Lin (Chinese) – 1.3 miles
Raja Tandoori (Indian) – 1.4 miles
Shopping
& Leisure
Post Office (within Scotmid) – 1.0 mile
Carluke Town Centre Shopping – 1.1 miles
Ramsay’s of Carluke Butchers – 1.2 miles
Hugh Black & Sons Butchers – 1.3 miles
Taal Indian Restaurant – 0.2 miles
Station Inn Restaurant & Bar – 0.4 miles
Prego Italian Restaurant – 1.1 miles
Kona Coffee – 1.1 miles
Braidwood Pond – 0.7 miles
The Bubbles Factory (Kids’ Softplay) – 1.1 miles
Carluke Leisure Centre – 1.5 miles
Soccer Stars Academy Carluke – 1.6 miles
Milton Nature Trail – 1.6 miles
Carluke Golf Club – 2.3 miles
Clyde Valley Family Park (Crossford) – 2.7 miles
Valley View Adventure Park (Rosebank) – 6.5 miles
Chatelherault Country Park (Hamilton) – 9.2 miles
Strathclyde Country Park (Motherwell) – 10.9 miles
Transport
& Travel
Carluke Train Station – 1.5 miles
41 – Hamilton – Lanark Bus (Stop at Braidwood, Lanark Road) – JMB Travel
240x – Lanark – Glasgow Bus (Stop at Carluke Cross) – Stuart Coaches
Glasgow City Centre – 24.4 miles
Edinburgh City Centre – 35.7 miles
Health
Practitioners
High Mill Medical Practice, St Luke’s Medical Centre & Dental Studio and Clear Vision Opticians – 1.1 miles
Lloyds Pharmacy – 1.3 miles
Boots Pharmacy – 1.4 miles
Optical Express – 0.9 miles
Clear Vision Opticians – 1.3 miles
Tooth Doctor – 0.9 miles
{my}dentist – 1.3 miles
Wishaw University Hospital – 7.1 miles
Robb Veterinary Clinic – 1.0 mile