
Nevis
3 bedroom detached villa with driveway
Sales Suite Open
More about this Nevis (Plot 93)
The Nevis is a stylish three-bedroom detached home, thoughtfully designed to support modern family living with comfort, flow, and functionality.
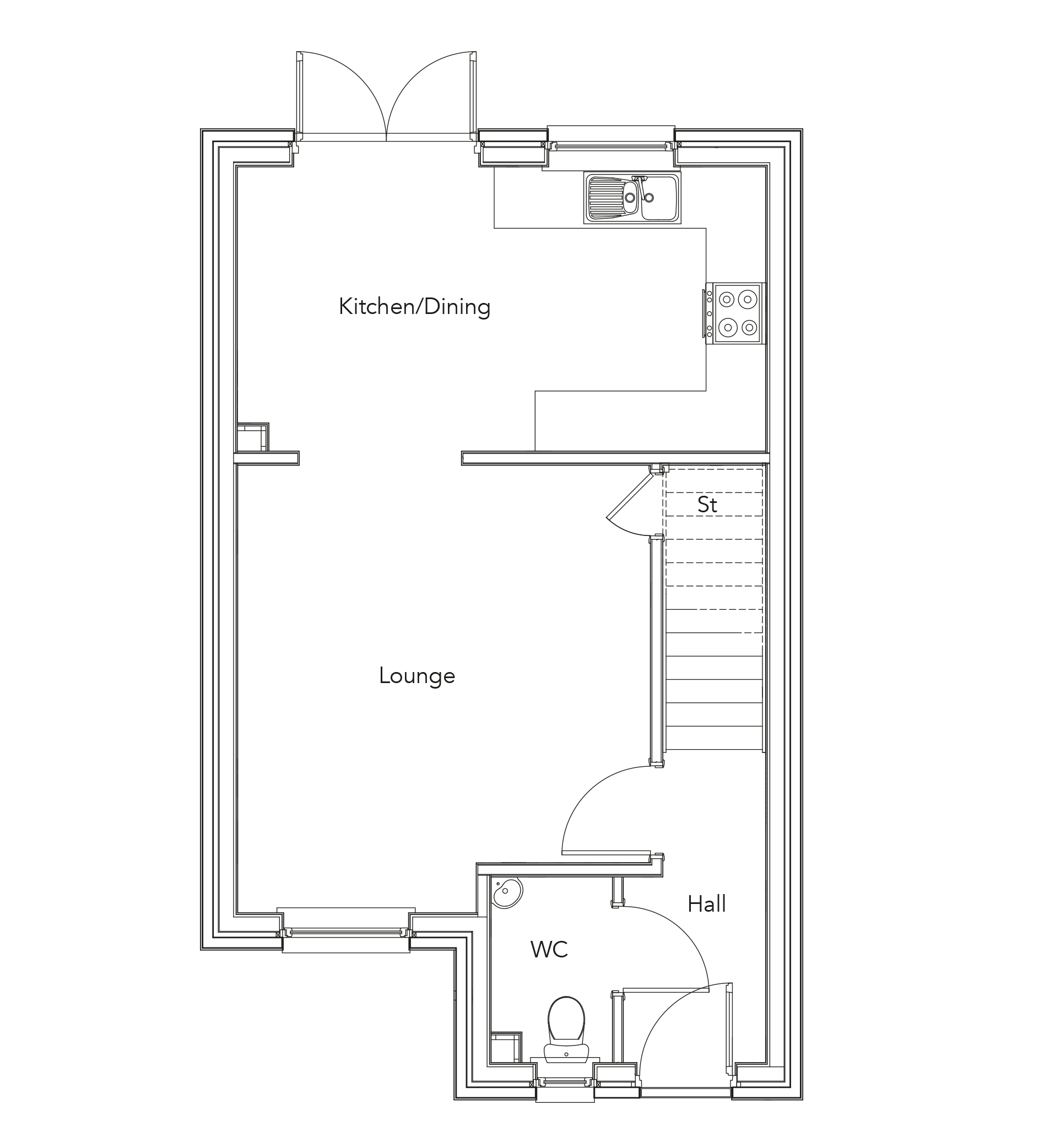
At the heart of the home sits a bright, open-plan kitchen and dining area, creating a sociable space ideal for everyday meals, entertaining guests, or relaxed family time. French doors open directly onto the rear garden, seamlessly blending indoor and outdoor living and filling the space with natural light.
A separate, inviting lounge offers a calm retreat away from the main living area, while a conveniently located ground-floor WC adds everyday practicality.
Upstairs, the principal bedroom benefits from a fitted wardrobe and a sleek en suite shower room, providing a private and comfortable sanctuary.
The second bedroom also features fitted storage, while a contemporary family bathroom is accessed from the landing.
Completing this attractive home is a monoblock driveway and a spacious rear garden, perfect for outdoor enjoyment.

| Metric | Imperial | |
|---|---|---|
| Lounge | 4.03 x 4.37 | 13’2" x 14’3” |
| Kitchen/Dining | 5.16 x 2.78 | 16’9” x 9’1” |
| WC | 1.18 x 1.81 | 3’9” x 5’10” |

| Metric | Imperial | |
|---|---|---|
| Principal Bedroom | 3.01 x 2.82 | 9’9” x 9’3” |
| En suite | 1.77 x 1.50 | 5’8” x 4’9” |
| Bedroom 2 | 3.01 x 2.76 | 9’9” x 9’1” |
| Bedroom 3 | 2.68 x 3.06 | 8’8” x 10’0” |
| Bathroom | 2.04 x 1.90 | 6’7” x 6’2” |
Dimensions shown for all our homes are approximate; each home is built individually and therefore precise measurements may vary from those shown, although every effort is taken to ensure dimensions are as accurate as possible. We give maximum dimensions that include fitted wardrobes, sloping ceilings, bay windows, and any other features. Measurements should not be relied upon for ordering or fitting carpets, floor coverings and all other fitted goods. Consequently, these particulars do not form part of any contract.
Options will be subject to build stage. Finished, ready to move into plots will have pre-selected kitchens and colours. For individual preferences please discuss any request as soon as possible with the Development Sales Manager/Advisor to avoid disappointment.
Allanwater Homes reserve the right, without notice, to change specification and equipment. *Subject to build stage. Full specifications can be found in the house-type brochure.

Finance Matters
If you don’t have a personal Independent Financial Adviser or haven’t received mortgage information, help can be sought from the IFA below.
Buchanan Tower Buchanan Business Park
Cumbernauld Road
Glasgow G33 6HZ
T: 0141 779 8010
E: stan.collins@mab.org.uk