
Cowal
3 bedroom end terrace villa
Sales Suite Open
More about this Cowal (Plot 19)
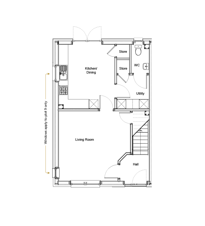
This superb three bedroom end terrace villa offers a large kitchen/dining room with a utility room, WC and ample storage space. The front-facing spacious lounge leads off the front hallway. Upstairs you will find three sizeable bedrooms and a family bathroom. The principal bedroom includes and en-suite and both bedrooms one and two have fitted wardrobes, bedroom three includes a large storage cupboard.

| Metric | Imperial | |
|---|---|---|
| Lounge | 3.72 x 4.38 | 12’3” x 14’4” |
| Kitchen/Dining | 3.52 x 4.02 | 11’7” x 13’2” |
| Utility | 2.11 x 2.00 | 6’11” x 6’7” |
| WC | 1.09 x 1.80 | 3’7” x 5’11” |

| Metric | Imperial | |
|---|---|---|
| Principal Bedroom | 2.71 x 3.83 | 8’11” x 12’7” |
| En suite | 1.81 x 1.30 | 5’11” x 4’3” |
| Bedroom 2 | 3.40 x 3.19 | 11’2” x 10’6” |
| Bedroom 3 | 2.82 x 2.67 | 9’3” x 8’9” |
| Bathroom | 2.13 x 2.67 | 7’0” x 6’7” |
Dimensions shown for all our homes are approximate; each home is built individually and therefore precise measurements may vary from those shown, although every effort is taken to ensure dimensions are as accurate as possible. We give maximum dimensions that include fitted wardrobes, sloping ceilings, bay windows, and any other features. Measurements should not be relied upon for ordering or fitting carpets, floor coverings and all other fitted goods. Consequently, these particulars do not form part of any contract.
Options will be subject to build stage. Finished, ready to move into plots will have pre-selected kitchens and colours. For individual preferences please discuss any request as soon as possible with the Development Sales Manager/Advisor to avoid disappointment.
Allanwater Homes reserve the right, without notice, to change specification and equipment. *Subject to build stage. Full specifications can be found in the house-type brochure.

Finance Matters
If you don’t have a personal Independent Financial Adviser or haven’t received mortgage information, help can be sought from the IFA below.
Buchanan Tower Buchanan Business Park
Cumbernauld Road
Glasgow G33 6HZ
T: 0141 779 8010
E: stan.collins@mab.org.uk