
Nevis
3 bedroom detached villa
Sales Suite Open
More about this Nevis (Plot 25)
This attractive three bedroom detached home has been perfectly designed to meet your living needs.
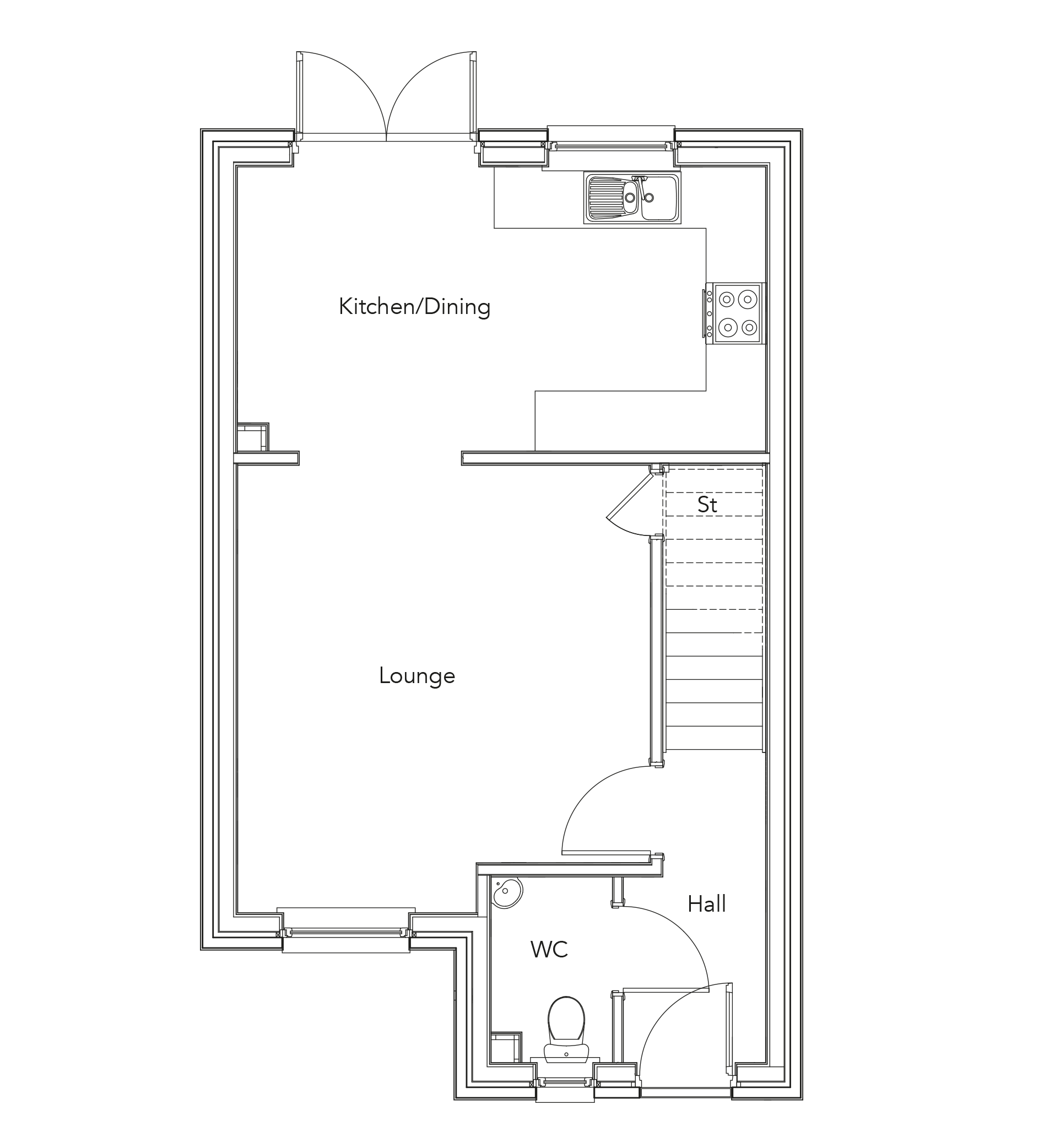
Its well-appointed open plan layout integrates the kitchen and dining area, promoting a sense of belonging and unity.
Separately, a comfortable lounge awaits, along with a conveniently situated WC on the ground floor.
Adding charm to the dining area are French doors opening onto the rear garden, bringing together the outdoor and indoor spaces.
Upstairs, the principal bedroom is complemented by a fitted wardrobe and en suite shower room, with the second bedroom also having a fitted wardrobe. The family bathroom is off the upstairs hallway. This property includes a monoblock driveway.

| Metric | Imperial | |
|---|---|---|
| Lounge | 4.03 x 4.37 | 13’12 x 14’3” |
| Kitchen/Dining | 5.16 x 2.78 | 16’9” x 9’1” |
| WC | 1.18 x 1.81 | 3’9” x 5’10” |

| Metric | Imperial | |
|---|---|---|
| Principal Bedroom | 3.01 x 2.82 | 9’9” x 9’3” |
| En suite | 1.77 x 1.50 | 5’8” x 4’9” |
| Bedroom 2 | 3.01 x 2.76 | 9’9” x 9’1” |
| Bedroom 3 | 2.68 x 3.06 | 8’8” x 10’0” |
| Bathroom | 2.04 x 1.90 | 6’7” x 6’2” |
Dimensions shown for all our homes are approximate; each home is built individually and therefore precise measurements may vary from those shown, although every effort is taken to ensure dimensions are as accurate as possible. We give maximum dimensions that include fitted wardrobes, sloping ceilings, bay windows, and any other features. Measurements should not be relied upon for ordering or fitting carpets, floor coverings and all other fitted goods. Consequently, these particulars do not form part of any contract.
Options will be subject to build stage. Finished, ready to move into plots will have pre-selected kitchens and colours. For individual preferences please discuss any request as soon as possible with the Development Sales Manager/Advisor to avoid disappointment.
Allanwater Homes reserve the right, without notice, to change specification and equipment. *Subject to build stage. Full specifications can be found in the house-type brochure.

Finance Matters
If you don’t have a personal Independent Financial Adviser or haven’t received mortgage information, help can be sought from the IFA below.
Buchanan Tower Buchanan Business Park
Cumbernauld Road
Glasgow G33 6HZ
T: 0141 779 8010
E: stan.collins@mab.org.uk